Projekte
Projektnummer:
ÖAW Doc-Stipendium
A-25805; Nachwuchsförderung Uni Ibk 2019/2/HIST-21
Laufzeit: 01.01.2020 - 31.12.2023
Projektleitung:Mag.arch. Eva Thysell BA MA
Förderung:
- Doktoratsstipendium, Nachwuchsförderung der Universität Innsbruck
- Österreichischen Akademie der Wissenschaften (DOC)
- Fördergelder des Landes Oberösterreich
Die archäologische Zone Stadlgasse – Plochbergergründe in Lauriacum/Enns
Siedlungsentwicklung und Chronologie im Bereich der südlichen canabae legionis
Projektbeschreibung
Mittlerweile sind fast 50 Jahre vergangen seit die Plochbergergründe in Lauriacum/Enns das erste Mal ins archäologische Rampenlicht traten. Auf den bis zu diesem Zeitpunkt landwirtschaftlich genutzten Flächen stand die Errichtung mehrerer Wohnhäuser an, was sowohl Archäologen und Denkmalschützer als auch lokale Vertreter auf den Plan rief. In einer Zusammenarbeit zwischen Bundesdenkmalamt und Museumverein Lauriacum fanden daraufhin in den Jahren 1972 bis 1976 Notgrabungen auf den Parzellen 101/1 und 101/2 statt, welche beachtliche Fundobjekte zu Tage bringen sollten und bis heute die Ausstellung im Museum Lauriacum wesentlich bereichern. Der damalige Grabungsleiter Hannsjörg Ubl strich in zusammenfassenden Publikationen bereits die Bedeutung dieser Ausgrabungen für das Verständnis der Siedlungsentwicklung von Lauriacum/Enns heraus. Umso bedauerlicher ist die Tatsache, dass die Informationen über diese Ausgrabung über überblicksartige Zusammenfassungen meist nicht hinausgehen. Nur der Vorbericht zur ersten Grabungskampagne des Jahres 1972 gibt etwas detailliertere Informationen zu einzelnen Grabungsabschnitten und Befunden. Ein Gesamtplan der Kampagnen der Jahre 1972 bis 1975 erschien zeitnah nach Beendigung der Ausgrabungstätigkeiten. Bauliche Details oder Bauphasen wurden in diesem Plan nicht berücksichtigt. Zurecht wurde daher vermehrt darauf hingewiesen, dass eine systematische Aufarbeitung der umfangreichen Fundkomplexe nötig ist, um diesen vielschichtigen Bereich in seiner Genese und Morphologie näher zu erforschen und damit einhergehend den Publikationsstand der wissenschaftlichen Bedeutung Lauriacums anzunähern.
Das hier vorgestellte Dissertationsprojekt der Autorin an der Universität Innsbruck erarbeitet daher erstmals eine umfassende Analyse der archäologischen Zone Stadlgasse – Plochbergergründe in Lauriacum/Enns anhand ausgewählter Befunde und Funde um so einen Beitrag zum Verständnis der Lagervorstädte und deren Entwicklung zu leisten.
Stadlgasse – Plochbergergründe
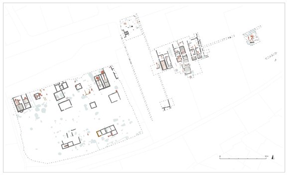
Die archäologische Zone Stadlgasse – Plochbergergründe befindet sich an den nördlichen Abhängen des Ennser Stadtberges, direkt südlich der heutigen Stadlgasse.

Durch zahlreiche Bodeneingriffe und Ausgrabungen konnte hier ein mehrmaliger Funktionswandel – von Gräberfeld zu zivilem Siedlungsbereich und wiederum zu einem Bestattungsplatz - nachgewiesen werden. Die römischen Aktivitäten lassen sich grob von der Mitte des 1. bis zur Mitte des 5. Jhs. datieren. Das im Projekt zu untersuchende Areal umfasst in seiner Gesamtheit eine Fläche von etwas über 10.000 m2, mit insgesamt ca. 20 potentiellen Gebäudestrukturen, 13 Brandbestattungen und 12 Körpergräbern unterschiedlicher Zeitstellung sowie zahlreichen Gruben- und Grabenstrukturen.

Als Ausgangspunkt der Arbeit dient der Umstand, dass die archäologische Zone Stadlgasse – Plochbergergründe in der Forschung zu Lauriacum/Enns einen prominenten Platz einnimmt, eine tatsächliche archäologische Auswertung der Befunde und Funde und damit einhergehend die Verifizierung angenommener Thesen jedoch bislang nicht erfolgt ist.
Das Projekt
Das hier vorgestellte Projekt baut auf den bisher gewonnenen Kenntnissen auf und strebt eine Gesamtbearbeitung der archäologischen Zone Stadlgasse – Plochbergergründe an. Dabei sollen neben der archäologischen Analyse der Befunde und Funde auch Erkenntnisse anderer Wissenschaftsdisziplinen einfließen. Es wird daher eine Zusammenarbeit zwischen Archäologie, Anthropologie, molekularer Archäologie (DNA) und Archäozoologie beabsichtigt, um auf diese Weise nicht nur Erkenntnisse über die Entwicklung der Siedlung, sondern auch einen Einblick in das Leben und zum Sterben deren Bewohner zu erhalten.
Im Mittelpunkt der Arbeit steht eine detaillierte Analyse zu Chronologie und Siedlungsentwicklung im genannten Bereich. Dieser bietet für Lauriacum/Enns die einmalige Möglichkeit die Genese vom 1. Jh. bis in das 5. Jh. n. Chr. nachzuvollziehen. Generell steht insbesondere der Funktionswandel im Untersuchungsareal im Fokus der angestrebten Analyse. Der nördliche Bereich der heutigen Plochbergergründe wird im späten 1. Jh. bis zur Mitte des 2. Jhs. als Bestattungsplatz genutzt. Nach der Niederlegung bzw. Auflassung dessen wird das Gebiet spätestens Ende des 2. bis Beginn des 3. Jhs. mit einer Wohn- und Wirtschaftsbebauung aufgesiedelt. Ungewöhnlich an einer systematischen Aufsiedlung zu diesem Zeitpunkt ist jedoch der beträchtliche Abstand von 20–30 m den die Gebäude zur Straße einhalten und so scheinbar Bezug auf das vormalige Gräberfeld nehmen. In älteren Publikationen wird dies im Allgemeinen mit der antiken Geländekante begründet, welche die obere Terrasse von der unteren trennt. Die Ausgrabung Plochberger 2013/14 hat jedoch gezeigt, dass sich entgegen der Erwartungen auch auf der unteren Terrasse Gebäude befinden, diese jedoch klar von der Straße in Richtung Süden abgerückt errichtet wurden. Ein zentrales Anliegen des Projektes ist daher, insbesondere frühe Gebäudebefunde möglichst genau zu datieren, um dadurch Rückschlüsse auf den Übergang vom Gräberfeld der frühen Siedlung zur Wohn- und Wirtschaftsbebauung der Lagervorstadt zu ziehen. In einer weiterführenden Untersuchung gilt darüber hinaus zu klären, ob es sich tatsächlich um eine großflächige Aufgabe der Bebauung auf den Plochbergergründen am Ende des 3. bis zum Anfang des 4. Jhs. handelt, wie dies durch bisherige Grabungsberichte und die Auswertung von Gebäude 12 angedeutet wird. Damit im Zusammenhang steht die Frage, ab wann die Belegung des Areals mit spätantiken Bestattungen beginnt bzw. wie lange diese dauert. In den bisher vorgelegten Fundberichten gehen die Ausgräber von einer Belegung des Areals mit Bestattungen bis zur Mitte des 5. Jhs. aus.
Gerade die Systematik hinter der Anlage der Gebäude auf den Plochbergergründen sticht besonders ins Auge. Die ‚Hauptgebäude’ dienten, soweit dies zum derzeitigen Zeitpunkt abschätzbar ist, als reine Wohngebäude und repräsentieren einen gewissen Wohlstand. Die Bebauungsform besteht aus einer offenen Reihe, durch die Freiräume um die Gebäude entstehen und daher keine durchgängige Häuserflucht gebildet wird. Das zugrundeliegende Parzellenschema zeigt sich langrechteckig mit einer Breite von ca. 18 bis 20 m. Die einzelnen römischen Gebäude auf den Plochbergergründen weisen konsequenter Weise einen sich wiederholenden Grundrisstyp auf, wobei es sich um das Mittelkorridorhaus handelt.

Im Zuge einer eingehenden Analyse dieses Gebäudetyps soll mittels Vergleichsbeispielen anderer Lagervorstädte und ziviler Siedlungsbereiche geklärt werden, ob es sich um ein spezifisch lokales Phänomen handelt oder mit einer überregionalen Verbreitung zu rechnen ist. Hinsichtlich der Gebäude selbst wird eine intensive Auseinandersetzung mit deren Bautechnik und Ausstattung angestrebt. Eine Besonderheit ist dabei die Entdeckung einer fast vollständigen Wand in Fachwerkbauweise mit vollflächigem Außenputz in Versturzlage. Mithilfe dieses Befundes kann das aufgehende Mauerwerk bis zu einer Höhe von 3,5 m rekonstruiert werden kann.

Publikationen (Auswahl)
Thysell, Mars und Victoria. Neue Funde verzierter militärischer Ausrüstungsteile aus Lauriacum/Enns, in: L. Berger – F. Lang – C. Reinholdt – B. Tober – J. Weilhartner (Hrsg.), ArcheoPlus 13, Gedenkschrift für Prof. Dr. Wolfgang Wohlmayr der Paris-Lodron-Universität Salzburg, ArchaeoPlus 13 (Salzburg 2020) 439–444
Thysell, Das Gebäude 12 der Grabung Plochberger 2013/14. Die chronologische Stellung der römischen Bebauung auf den Plochbergergründen in Lauriacum/Enns anhand eines exemplarischen Beispiels, in: L. Berger – L. Huber – F. Lang – J. Weilhartner (Hrsg.), Akten des 17. österr. Archäologentages an der Universität Salzburg vom 26. bis 28. Februar 2018, ArchaeoPlus 11 (Salzburg 2020) 533–566
Thysell, Lauriacum/Enns: Römische Siedlungserweiterung am Beispiel Stadlgasse – Plochbergergründe, in: St. Traxler – F. Lang (Hrsg.), Colloquium Lauriacum 2016. Das römische Heer – Wirtschaftsfaktor und Kulturträger, Beiträge zur Tagung im Museum Lauriacum – Enns 22.-24. September 2016, Forschungen in Lauriacum 19 (Linz 2020) 141–161
KooperationspartnerInnen:
- Mag. Dr. Stefan Traxler (OÖ Landes-Kultur GmbH, Abt. Römerzeit, Mittelalter und Neuzeitarchäologie)
- Mag. Heinz Gruber, Mag. Christoph Blesl, Univ.-Doz. Dr. Bernhard Hebert (Bundesdenkmalamt, Abt. für Archäologie)
- Dr. Reinhardt Harreither (Museum Lauriacum, Wissenschaftlicher Leiter)
- Prof. Gottfried Kneifel (Museumverein Lauriacum, Obmann)
- Prov.-Doz. Mag. Dr. Klaus Vondrovec (Kunsthistorisches Museum Wien, Direktor Münzkabinett)