|
|
Start
> Künstler >
Künstlerverzeichnis >
Crivelli, Andrea |
|
|
|
|
|
|
1.
CRIVELLI, Andrea (Andreas)
|
|
|
2.
BERUFSBEZEICHNUNG
Architekt(?),
Baumeister, Regierungsbeamter, Verwalter |
|
|
3. BIOGRAPHIE
* um 1470, Castel Tesino (Trient) oder Pergine (?)
† nach 1557
Das genaue Geburtsdatum ist nicht bekannt.
Andrea Crivelli war der Sohn eines Leonardo aus Castel Tesino bei Trient (SAUER, Allgemeines Künstlerlexikon, Band 22 Courts – Cuccini, Sauer Verlag, München – Leipzig 1999). Er wird zum ersten Mal als Zeuge bei dem Ankauf eines Hauses für die adelige Familie Pona in einem Dokument vom 17. Oktober 1502 erwähnt. Am 30. Oktober 1513 ist Andrea Verwalter von Giovanni Antonio Pona, der seinerseits Kämmerer des Kaisers in Verona und Camerlengo ist. Crivelli kümmert sich um seine Besitztümer und Geschäfte in Trient. Er wohnt damals im Viertel S. Croce in Trient, das sich zu dieser Zeit außerhalb der Stadtmauer befindet. Er besitzt vor dem Turm ("il torrione", DAL PRÀ 1993, S. 500) eine Apotheke (WEBER, 1925). 1525 wird er zum Konsul gewählt. In einer Zeit von Ruhelosigkeit für Trient, in der der sogenannte "guerra rustica" (Bauernkrieg) seinen Höhepunkt erlebt, beweist Crivelli seine Professionalität. Am 25. Mai ist er in Riva del Garda um Bernardo Clesio, Fürstbischof von Trient, zu überreden, nach Trient zurückzukehren. Am 9. Juni vertritt er seine Stadt beim Landtag in Innsbruck. Im selben Jahr wird er mit der Befestigung der Stadtmauer Trient beauftragt. Während seiner ersten Legation wird er 1528 von Bernardo Clesio wegen seiner Fähigkeit als Mitarbeiter des Ingenieurs Ludovico Zaffran aus Mantua, der ihn ein Jahr vorher entworfen und begonnen hatte, beim Bau des Castello del Buonconsiglio persönlich ausgewählt. Der Einfluss von Giovanni Antonio Pona, der schon am Bau des Schlosses als Mitarbeiter Zaffrans tätig war, ist nicht auszuschließen (WEBER, 1925).
Einige Aufgaben von Crivelli am Bau des Palazzo Vecchio sind: Das Besorgen von Materialien und Künstlern; die Kontrolle über die Leistung der einzelnen Arbeiter; das Überprüfen von Rechnungen und ihre Bezahlung; der Kontakt mit dem Kardinal Cles, dem Auftraggeber des Projekts, der über Ausstattung des Baus, neue Kunstwerke usw. informiert werden will.
1535 führt er den Bau zu Ende. Aufgrund dieses Auftrags vermutete man, dass er für äußerst außergewöhnliche architektonische Kenntnisse bekannt war, obwohl er nie offiziell in Trient weder als Baumeister noch als Architekt oder Ingenieur genannt wird. Neuere Forschungen vermuten, dass Crivelli jedoch eher administrative Aufgaben, als architektonische oder technische Aufgaben bei seinen Bauten hatte(SAUER, allgemeines Künstlerlexikon, Band 22 Courts – Cuccini, Sauer Verlag, München – Leipzig 1999).
Die Restaurierungen in Castel Selva, Castel Tenno und Castel Toblino werden ebenso von ihm koordiniert. Vor allem bei Castel Toblino, einer Burg, die auf einer Halbinsel am gleich genannten See ruht, wird Crivellis Erfahrung in der Bodensanierung beim Fluss Brenta in der Valsugana gebraucht (DAL PRÀ, 19993, S. 631). 1537 bis 1539 nimmt er am Umbau des bischöflichen Palastes in Cavalese teil. Er baut es im Renaissancestil um. Mehrfach wird deutlich, wie hoch Crivelli von Bernhard von Cles angesehen wird. Der Kardinal lässt ihm bei jeder Baustelle das letzte Wort.
Großes Vertrauen in Crivelli haben wohl auch der Magistrat (Gerichtsbeamte) von Trient und der Kardinal Cristoforo Madruzzo (Fürstbischof von Trient ab 1539). Am 16. April 1538 bekommen Crivelli und der Meister Alessio Tajapreda die Aufgabe einen Fehler zu beurteilen und zu korrigieren, den Domenico da Vezzano und Giovanni Cestari während der Arbeiten an der S. Lorenzo Brücke gemacht hatten. 1548 wird Crivelli von den Konsuln von Trient beauftragt, die Verarbeitung von zwei vergoldeten Silbertellern mit dem Wappen der Stadt, die dem König Philipp von Spanien geschenkt werden sollen, zu überprüfen und sie durch den Beitrag der Bürger (Crivelli war auch Kassenführer) zu finanzieren (WEBER, 1525).
Crivelli dürft auch an anderen Bauprojekten des Bernardo Clesio und des Cristoforo Madruzzo (Madruccio) beteiligt gewesen sein, u.a. an S. Zeno in Nonsberg, an der Pfarrkirche von Civezzano und an der Konzilskirche Santa Maria Maggiore in Trient.(SAUR XXII) Als Architekt für den Bau S. Maria Maggiore wird um 1520 Antonio Medaglia aus der Lombardei berufen,
der zum ersten und auch letzten Mal in Trient arbeiten wird (DAL PRÁ, 1993, S. 501).
1547 ist er wieder Konsul in Trient.
Crivelli arbeitete bis jetzt nur im trientinischen Bereich, seine Fähigkeiten und Baukenntnisse werden jedoch bald weiter bekannt. 1549 ist er beim Bau der Pfarrkirche von St. Pauls in Eppan bei Bozen tätig.
Nun lädt die Tiroler Regierung Crivelli und den Meister Alessandro Longhi nach Innsbruck für die Planung der Franziskaner-Hofkirche ein, die für das Mausoleum Maximilians I errichtet werden soll. Crivelli plant das Gesamtprojekt und ist sogar bereit, nach Wien zu reisen um das Ganze Ferdinand I zu erklären.
Zu diesem Punkt stimmt die unterschiedliche Literatur nicht ganz überein.
WEBER berichtet, dass vor einer endgültigen Entscheidung der Regierung Tirols drei Jahren vergehen, während denen Crivelli in Trient wohnt und 1551 zum dritten Mal Konsul wird. Ende 1552 kehrt Crivelli nach Druck der Tiroler Regierung nach Innsbruck zurück. Dort vervollständigt er seinen Entwurf, der unter Anderen ausgewählt wird. Im Frühjahr 1553 ist er wieder in Innsbruck um die Arbeiten zu leiten. 1554 fährt er nach Wien um zu vermeiden, dass sein Entwurf verändert wird.
Nach THIEME-BECKER erscheint Crivelli 1549 bis 1554 als der erste Architekt und Bauleiter der Franziskanerkirche (Hofkirche) in Innsbruck. Ihm folgt Nicolaus Düring (Türing) und 1558 Marco della Bolla. Letzterer dürfte ein Schüler Crivellis gewesen sein, da er auch die von Ihm begonnene Kirche von St. Pauls (Eppan) vollendet. THIEME-BECKER, 8, 1913).
Im ÖKL liest man, dass der Bau schon von 1553 bis 1563 dem Innsbrucker Werkmeister Nicolas Türing dem Jüngeren als Bauleiter übertragen wird.
Etwas genauer ist Johanna Felmayer im Band 47 des Österreichischen Künstlerlexikon (ÖKT, XLVII). Crivelli sei 1549 mit Alessandro (od. Alessio) Longhi (Mailänder, der in Trient tätig war und dessen Sohn Girolamo für das Hauptportals der Hofkirche in Innsbruck beauftragt wird) nicht für das Projekt der neuen Hofkirche berufen worden, sondern um die Pfarrkirche umzubauen, die wegen finanzieller Schwierigkeiten das Grabmal Maximilians aufnehmen sollte. Erst als der Kaiser seinen Willen äußert, sogar ein Stift an der Stelle der Pfarrkirche zu verwirklichen, unter Einbeziehung der nördlichen Pfarrplatzflanke und des Kräuterhauses, sowie eines Teiles des Hofgartens, scheint es der Regierung günstiger, einem Neubau auf dem ehemals vorgesehenen Platz (wo sich die heutige Hofkirche befindet) zuzustimmen. Nach längeren Verhandlungen und Überlegungen, bei denen auch ein Baumeister aus Vicenza und ein Baumeister Cirambell ins Auge gefasst werden, beruft die Regierung im Jahre 1552, trotz seines hohen Alters, Andrea Crivelli aus Trient. Dieser reist mit dem Auftrag, in Bozen das Dominikanerkloster zu besichtigen, "damit er umso besser beim Stiftbau Bescheid wisse", im November 1552 nach Innsbruck. Dort ist er einen Monat mit Plänen und Kostenvoranschlägen beschäftigt. Anscheinend wird er von Marx (Marco) della Bolla begleitet, der die Modelle anfertigt. Nach einer von Kaiser Ferdinand I geforderten Planänderung mit Verlängerung und Erweiterung der Kirche wird der Bau an Crivelli vergeben. Hohes Ansehen hat Crivelli auch in Innsbruck gewonnen. In einem Vertrag vom 26. Juni 1553, in dem Niclas (Nikolas) Türing (Düring) d. Jüngere als örtlicher Bauleiter bestellt wird, heißt es, Türing solle genau nach den Plänen arbeiten, worüber der "verordnete" Baumeister Andrea Crivelli zu wachen habe. Von Juni 1553 bis Juli 1554 soll Crivelli selten in Innsbruck gewesen sein, da berichtet wird, der Bau habe durch seine häufige Abwesenheit gelitten. Im Juli 1554 fährt Crivelli zu neuerlicher Berichterstattung nach Wien (ÖKT XLVII, S. 238 - 239).
Zusammen mit dem Bau der Hofkirche soll Crivelli auch den Bau des Neuen Stiftes, das zur Versorgung der Hofkirche bestimmt war, geleitet haben (DEHIO 1960, S. 84).
Sowohl SAUR, als auch der ÖKL datieren das letzte Konsulat Crivellis in Trient auf 1557. Die letzte gesicherte Nachricht ist aber die von 1554 über den Aufenthalt Crivellis in Wien (WEBER, 1925). |
| |
4. FAMILIEN-,
FREUNDES- UND AUFTRAGGEBERKREIS
Der Vater des Andrea Crivelli wird in dem schon erwähnten Dokument vom 17. Oktober 1502 "Leonardo Crivelli di Castel Tesino, cittadino di Trento" genannt, während in anderen Dokumenten auf ihn mit "da Castel Tesino abitante a Pergine" oder "da Pergine cittadino di Trento" hingewiesen wird.
Ob Andrea Crivelli Geschwister hatte, ist in keinem Dokument nachzuweisen.
Bevor er als Baumeister hoch geschätzt wurde, war Andrea Crivelli Verwalter, ein Beruf, den er im Dienst des Giovanni Antonio Pona aus Verona erlernt hatte. Der Pona, der Kämmerer des Kaisers war, spielte sicherlich eine wichtige Rolle beim Gewinnen großer Auftraggeber. Wie zum Beispiel Bernardo Clesio, der Kanzler des Reiches war und der mit Ferdinand I. und Philipp von Spanien in guter Beziehung stand oder Cristoforo Madruzzo, Fürstbischof von Trient (nach dem Clesio, 1539 - 1567) und von Brixen (1542 - 1578) und schließlich Ferdinand I. |
| |
| 5.
WERKE (TIROL)
5.1 Die
Franziskaner- oder Hofkirche in Innsbruck, 1553
Ihrer Bestimmung gemäß hat Crivelli die Hofkirche, die das Grabmal Maximilians aufnehmen sollte, als dreischiffige Hallenkirche geplant, in der das Langhaus sowohl gegen die nördliche Stirnwand über dem Eingang, als auch gegen den südlichen Choranbau durch je eine Empore abgeschlossen ist. Das Langhaus schließt an den oktogonalen Choranbau an. Gesamtanlage, Gewölbeformen und Spitzbogenfenster sind gotische Bauelemente. Die schlanken Säulen sind jedoch durch Renaissancekapitelle abgeschlossen. Der elegante, von Gerolamo Longhi ausgeführte Portalvorbau, ist im Stil der italienischen Frührenaissance ausgeführt (Kittinger, 1967).
Die Innsbrucker Hofkirche ist ein typisches Übergangswerk von der Gotik zur Renaissance. Crivelli dürfte auch an anderen, für Bernardo Clesio erbauten Kirchen, beteiligt gewesen sein, die einen ähnlichen Kompromisstil zwischen Gotik und Renaissance zeigen (ÖKL II). Er wurde als der Vertreter des in Innsbruck, ebenso wie in Trient heimischen Mischstils (clesianischer Mischstil) süddeutscher und italienischer Baukunst schlechthin anerkannt. Im betont schlichten Äußeren sind direkte Bezüge zu der aus dem 13. Jh. stammenden Kirche S. Apollinare in Trient erkennbar. Die Vorhalle steht ebenfalls unmittelbar in der Trientiner Bautradition und hat ihre Vorbilder in den Pfarrkirchen von Pergine und Cavalese. (ÖKT XLVII, S. 264) Die dreischiffige Hallenkirche zeigt aber auch Ähnlichkeiten mit der Heiligkreuzkirche in Augsburg und der Franziskanerkirche in Schwaz, mit dreiseitig geschlossenem Chor, Rund- und Spitzbogenfenstern (DEHIO 1980, S. 10)
Die Entwürfe Crivellis wurden im Laufe der Bauarbeiten im 16. Jh. um einiges verändert: die Vergrößerung der Kirche; der Bau der Lettnerempore und der Krypta; es wurde ein steiles Dach anstelle des von Crivelli geplanten runden Daches errichtet. Diese Änderungen gehen zum Teil auf den Kaiser selbst und seine Beratungen mit seinen Wiener Hofbaumeistern zurück. (ÖKT XLVII, S. 266)
5.2 Das
neue Stift, heutiges Volkskunstmuseum, Innsbruck, 1553
Diese Webseite ist archiviert. Unter Umständen sind nicht alle Inhalte barrierefrei. Weitere Informationen finden Sie in unserer Erklärung zur Barrierefreiheit.
Das in seiner Gesamtanlage aus dem 16. Jh. stammende, nach Planungen und unter Bauleitung des Crivelli erbaute Gebäude, ist in einem unregelmäßigen Viereck um einen rechteckigen Arkadenhof angelegt. Der Westflügel schließt an die Hofkirche an (ÖKT XLVII, S. 313). 
Für die Entwürfe des Kreuzgangs hatte Crivelli den Hof der Dominikaner in Bozen als Vorbild genommen. Die spätere Ausführung folgt aber wahrscheinlich unterschiedlichen Entwurfsvorschlägen und verleiht dem Hof und dem Neuen Stift nicht ganz das von Crivelli geplante Aussehen (DAL PRÀ, 1993, S. 503). 
Die heutige Fassade an der Universitätsstraße und die Ansicht des Hofes wurden 1719 /20 von Georg Anton Gumpp entworfen und ausgeführt (ÖKT XLVII, S. 313). |
|
| 6.
ABBILDUNGEN (TIROL)
5.1.1
Hofkirche, Grundriss, Bildnachweis: www.Hofkirche.at
5.1.2
Hofkirche, Innenansicht mit Kenotaph Maximilian, Bildnachweis:
www.Hofkirche.at
5.1.3 Hofkirche, Detail mit Säule und Gewölbe, Westseite,
Bildnachweis: eigene Aufnahme.
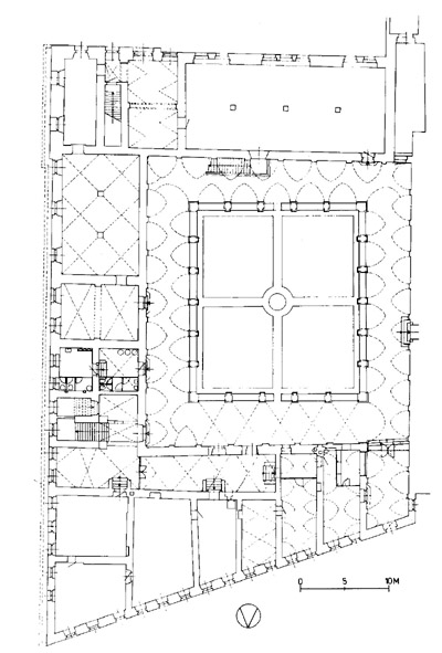
5.2.1 Neues Stift, Volkskunstmuseum, Grundriss des Erdgeschosses, Bildnachweis:
ÖKT XLVII, 1976, Abb. 415.
5.2.2
Neues Stift, Hof, Ansicht von Westen, Bildnachweis: eigene Aufnahme.
|
| |
| 7.
BIBLIOGRAPHIE
DAL PRÁ,
Laura, I Madruzzo e l'Europa, 1539 - 1658, I principi vescovi
di Trento tra Papato e Impero, Milano 1993.
DEHIO-Handbuch,
Die Kunstdenkmäler Österreichs, Tirol, Wien 1960.
DEHIO-Handbuch,
Die Kunstdenkmäler Österreichs, Tirol, Bearbeitet von
u.a. G. Ammann, E. Egg, j. Felmayer, Wien 1980.
Kittinger,
Hubert, Hofburg, Silberne Kapelle und Hofkirche zu Innsbruck,
Innsbruck,1967.
ÖKL II,
1976, Österreichisches Künstlerlexikon von den Anfängen
bis zur Gegenwart, verfasst von Rudolf Schmidt, Band 2,
Wien 1976.
ÖKT XLVII,
Österreichische Kunsttopographie, Band XLVII, Die Kunstdenkmäler
der Stadt Innsbruck, Die Hofbauten, bearb.
von Johanna Felmayer,
Karl und Ricarda Oettinger, Wien 1976.
SAUR, Allgemeines
Künstler-Lexikon, Die Bildenden Künstler aller Zeiten
und Völker, Bd. 22, Leipzig 1999.
THIEME-BECKER,
Allgemeines Künstler Lexikon, Bd. 8: 1913.
WEBER, Simone, Appunti per la storia dell'arte nel Trentino, Trento
1925.
WEBER, Simone,
Artisti trentini ed artisti che operarono nel Trentino, Trento,1933.
www.Hofkirche.at |
|
©Rosanna
Dematté, Februar 2003; überarbeitet von Alexander Oberlechner, Oktober 2009 |
| |
|